For decades, I have collaborated closely with my clients to design and build custom homes and cabins that reflect their vision. I am not an architect, but I have a talent for listening, understanding, and translating ideas into clear, detailed drawings that ensure everyone involved, clients, builders, and subcontractors, has a complete understanding of the project.

In the early years, I often built physical models to work through complex design challenges. As computer drafting programs evolved, I transitioned to virtual models, allowing clients to explore their designs in a more immersive and interactive way.

With a background in both hand-drawn and digital drafting, I combine traditional sketching techniques with advanced CAD software to create precise working drawings that bring concepts to life and provide essential guidance for construction teams. My goal is to make the design process seamless, practical, and aligned with each client’s unique vision.

House design sketchbook page John Huisman
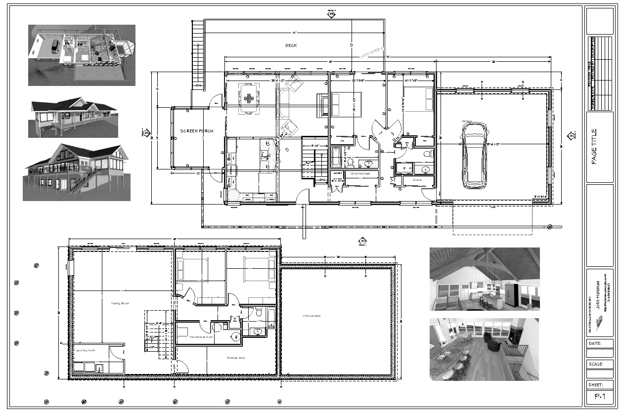
CAD plan Drawing by John Huisman
Untitled 1